Description
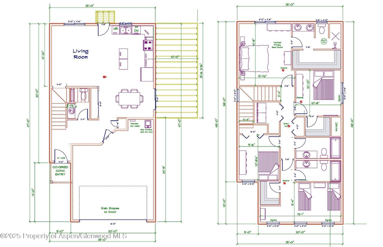
Buy it now and make it your own. for a limited time, a buyer under contract will get to choose most all the finish colors/styles throughout the house. Act now to select Cabinets, countertops, flooring, roof shingles Bathroom tile, hardware finish. This new build comes standard with KraftMaid Cabinetry, luxury vinyl plank flooring, solid surface countertops with seamlessly integrated sinks, stainless steel Kitchen appliances, Custom tiled walk-in shower and tiled tub surrounds. The waterproof vinyl plank flooring will be installed throughout the main floor, up the stairs and down the hallway. Carpet in bedrooms only. A floor plan has been included in the documents section of the listing. The Main floor is open for entertainment, has a foyer, has great light, extra storage, and the separate spaces flow seamlessly together. As you can see the layout is designed with family efficiency in mind. Note the laundry room in close vicinity to all the clothes. No more running up and down the stairs with heavy baskets of laundry. Three bathrooms upstairs allow for privacy and efficiency during the morning routine. Free to call the builder with any further questions. Jeb Savage with JBS Construction can be reached by email at jbsinco@gmail.com. The house is now being dry-walled and can completed by late June
-
4BEDS
-
0.1ACRES
-
3BATHS
-
11/2 BATHS
-
1,871SQFT
-
$0$/SQFT
School Ratings & Info
Description
Buy it now and make it your own. for a limited time, a buyer under contract will get to choose most all the finish colors/styles throughout the house. Act now to select Cabinets, countertops, flooring, roof shingles Bathroom tile, hardware finish. This new build comes standard with KraftMaid Cabinetry, luxury vinyl plank flooring, solid surface countertops with seamlessly integrated sinks, stainless steel Kitchen appliances, Custom tiled walk-in shower and tiled tub surrounds. The waterproof vinyl plank flooring will be installed throughout the main floor, up the stairs and down the hallway. Carpet in bedrooms only. A floor plan has been included in the documents section of the listing. The Main floor is open for entertainment, has a foyer, has great light, extra storage, and the separate spaces flow seamlessly together. As you can see the layout is designed with family efficiency in mind. Note the laundry room in close vicinity to all the clothes. No more running up and down the stairs with heavy baskets of laundry. Three bathrooms upstairs allow for privacy and efficiency during the morning routine. Free to call the builder with any further questions. Jeb Savage with JBS Construction can be reached by email at jbsinco@gmail.com. The house is now being dry-walled and can completed by late June
Data last updated: 2026-03-14T11:38:35.93.
